Beschrijving

Verhuizen, uitpakken en genieten op je dakterras? Dat kan bij deze recent grotendeels gerenoveerde maisonnettewoning met balkon op de 1e etage en dakterras op de 2e etage. De woning is centraal gelegen in de populaire Leidsebuurt op loopafstand van de gezellige binnenstad van Haarlem en op steenworpafstand van het winkelcentrum Plaza West voor de dagelijkse boodschappen. De woning is gelegen in een straat vol met authentieke gevelelementen, waardoor de woning zich bevindt in een sfeervolle stadsstraat. In de omgeving zijn meerdere leuke plekjes waar je gezellig samen komt voor een koffie, hapje, drankje en plekken waar kinderen zich helemaal kunnen uitleven. In de Leidse buurt wonen, is wonen in de hippe woonwijk midden in de bruisende stad Haarlem met echt alle voordelen van de stad; het station vlakbij, de gezellige horeca en uitgaansgelegenheden. Maar ook medische voorzieningen en scholen op steenworp afstand. Recreëren kan in één van de nabij gelegen parken, buitenplaats Elswout of een wandeling door duinen. Het mooie zandstrand van Bloemendaal is op fietsafstand. Kortom een heerlijke plek om ’s avonds thuis te komen na een lange werkdag of die gezellige dag in de stad.

Begane grond
Er is een eigen entree met hal en de vernieuwde uitgebreide meterkast. Via de trap kom je op de 1e etage. 

1e etage
Overloop met trappartij, ruimte voor de garderobe, vrijdragend toilet en toegang tot de living. Via een deur kom je in de living met aan de achterzijde de nieuwe keuken voorzien van een koelkast, combimagnetron, gaskookplaat, afzuigkap, vaatwasser en Quooker. Het geheel is uitgevoerd in een moderne kleurstelling en het is fijn dat er door het raam daglicht komt op het werkblad van de in L-opstelling geplaatste keuken.
De eettafel is nu geplaatst aan de achterzijde bij het balkon in de nabijheid van de keuken. Als het lekker weer is dan zet je deuren open en is het balkon op het zuiden een heerlijk plekje voor een kop koffie tijdens de werkpauze. Aan de voorzijde is een deels uit het zicht onttrokken ruimte die ideaal als werkplek kan worden ingericht met veel direct daglicht. Dit deel van de living kan ook als speelkamer of zoals nu de leeshoek worden ingericht, met de zithoek in het verlengde.

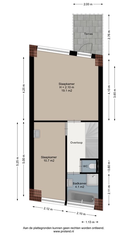
2e etage
Vanaf de overloop is er toegang tot de badkamer en twee slaapkamers. De badkamer is voorzien van een ligbad en separaat toilet, wastafelmeubel en spiegelkast. Naast de badkamer is het vrijdragende toilet.
De slaapkamer aan de voorzijde met wastafel is van een goed formaat en nu in gebruik als werkkamer. Aan de achterzijde is een zeer royale slaapkamer met toegang tot het dakterras boven de keuken. 

3e etage
Slaapkamer 3 is op zolder en heeft een grote dakkapel met veel daglichttoetreding. Er is een kast voor de Remeha cv-ketel uit 2025 en daarnaast de wasmachine aansluiting. De dakkapel zorgt dat de zolder een ruimte is die geschikt voor meerdere doeleinden, van slaapkamer, werkkamer tot hobbyruimte.

Bijzonderheden
• grotendeels gerenoveerd in 2025
• nieuwe keuken met Bosch inbouwapparatuur
• glad gestuukte wanden en hoge glad gestuukte plafonds 
• balkon en dakterras op het zonnige zuiden
• energielabel B en Remeha cv-ketel uit 2025
• wonen in de populaire Leidsebuurt op loopafstand van het centrum 
• funderingsherstel uitgevoerd in 1998  
• station Haarlem en bushalte vlakbij
• VVE bijdrage € 60,= per maand 
• notariskeuze verkoper Notariskantoor Hillegom
• aanvaarding kan per direct

Kenmerken