Beschrijving

Inboedel verhuizen en genieten in deze gerenoveerde benedenwoning met energielabel A+, die centraal is gelegen in de populaire Leidsebuurt op loopafstand van de gezellige binnenstad van Haarlem en winkelcentrum Plaza West voor de dagelijkse boodschappen. Vanuit de woning een vrije 
doorkijk naar de speeltuin, waar buurtgenoten/kinderen samenkomen en voor de lekkere trek kun je iets lekkers halen bij snackbar ’t Pleintje. Ook leuke spots in de buurt zijn het gezellige café Bert of café Spoorloos en voor de lekkerste koffie ga je naar espressobar Gast. Ja, dit is wonen in de hippe 
woonwijk midden in de bruisende stad Haarlem met echt alle voordelen van de stad; het station vlakbij, de gezellige horeca en uitgaansgelegenheden. Maar ook medische voorzieningen en scholen op steenworp afstand. Recreëren kan in één van de nabij gelegen parken, buitenplaats Elswout of een 
wandeling door duinen. Het mooie zandstrand van Bloemendaal is op fietsafstand. Kortom een heerlijke plek om ’s avonds thuis te komen na een lange werkdag of die gezellige dag in de stad. 

Begane grond 
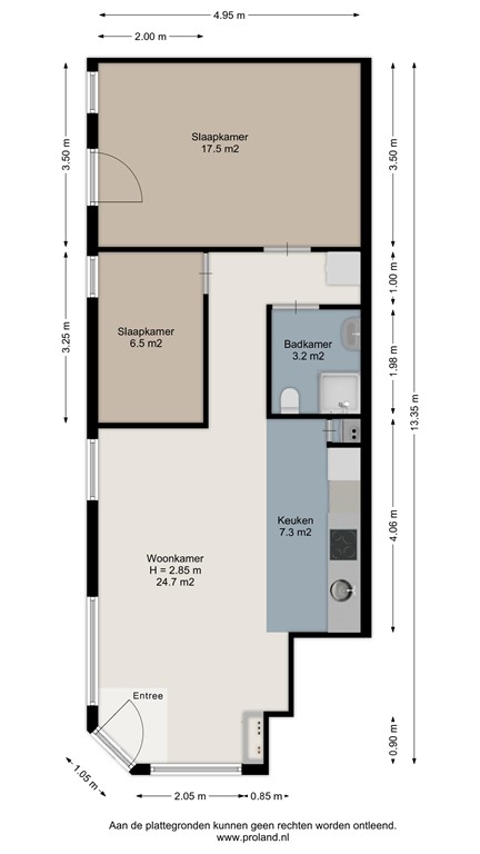
De gehele woning bevindt zich op de begane grond met de hoofdentree op de hoek. In 2025 is de woning grotendeels gemoderniseerd, maar mooie elementen zoals de glas-in-loodramen zijn ondanks verduurzamingsmaatregelen bewaard gebleven. Je komt meteen binnen in de sfeervolle lichte living 
die strak is afgewerkt met gestuukte wanden, plafonds en een laminaatvloer met vloerverwarming. De nieuwe keuken is een ware eyecatcher en voorzien van Bosch inbouwapparatuur. Hier kan je heerlijk samen koken en met de koel-/vrieskast, de combi-oven, inductiekookplaat met afzuiging, vaatwasser 
en de Quooker is de basis aanwezig voor veel gezellige uurtjes in de keuken. De zithoek is nu geplaatst in de lichte hoek van de ruimte en de eettafel tegenover de keuken. Er is ruimte om een langere eettafel te plaatsen waar je samen met vrienden of familie kan tafelen. In het verlengde van de keuken bevindt zich de badkamer met een wastafelmeubel, douche en toilet. Daar tegenover is de kleine slaapkamer die nu gebruikt wordt als werkkamer. De hoofdslaapkamer bevindt zich aan de achterkant van het appartement en dat is een zeer royale kamer. Hier kan een grote inbouwkast gerealiseerd worden en dan past er nog steeds een groot 2-persoonsbed in. Via een raam krijgt de kamer veel daglicht en er is een deur naar buiten waardoor je de zonnestralen naar binnen kunt halen. Voor de warme voeten er vloerverwarming en dat comfort is aanwezig in de woonkamer en slaapkamers. 

Bijzonderheden 
• gerenoveerd in 2025, met nieuwe installaties 
• energielabel A+, dus lage stookkosten 
• nieuwe keuken met Bosch inbouwapparatuur 
• nieuwe Remeha cv-ketel en eigen zonnepanelen op het dak 
• glad gestuukte wanden en hoge glad gestuukte plafonds  
• wonen in de populaire Leidsebuurt tegenover de speelplaats  
• alle voorzieningen van het gezellige centrum op loopafstand  
• station Haarlem en bushalte vlakbij 
• VVE bijdrage € 65,= per maand te startten vanaf levering 
• notariskeuze verkoper Notariskantoor Hillegom 
• aanvaarding kan per direct

Kenmerken