Beschrijving

Wonen in het centrum van Lisse met alle voorzieningen op loopafstand is voor velen een wens en misschien bent u straks de gelukkige die het 3-kamerappartement aan de Nassaustraat 110 uw nieuwe thuis mag noemen! Het ruime appartement is gelegen in een keurig verzorgd appartementencomplex “Residence Nassau” gelegen op de 3e etage. Er is een lift en een centraal trappenhuis om het appartement te bereiken. Prettig is dat de woning een gunstig energielabel A heeft, dus de woning is goed geïsoleerd. 

Het appartement is gebouwd in 1994 en gelegen in het gezellige centrum van Lisse met op loopafstand een gevarieerd winkelaanbod, sportcentrum de waterkanten, medische voorzieningen en het horecaplein. De uitvalswegen richting Amsterdam, Schiphol, Den Haag, Leiden en de Noordzee kust zijn eenvoudig te bereiken. Maar ook andere sport- en recreatiefaciliteiten zoals de Keukenhof en de ijsbaan zijn op fietsafstand. Kortom een heerlijke plek om straks jouw thuis te mogen noemen, waar je zelf kan bepalen wanneer je tijd voor jezelf neemt of ontspanning/vermaak in omgeving opzoekt 

Begane grond
Er is een centraal entree met bellentableau in de afgesloten centrale hal bevinden zich de lift en trap naar boven. Beneden bevindt zich de privé berging en een eigen parkeerplaats op de bewonersparkeerplaats achter de slagboom.

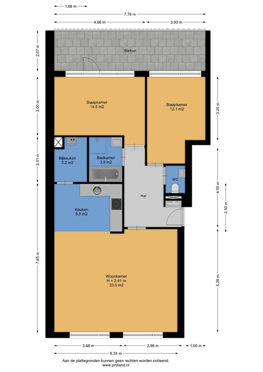
Appartement
In het appartement is de ruime hal met toegang tot alle ruimtes. De royale woonkamer met semi-open keuken is een zeer lichte ruimte met een leuke doorkijk. Hier is een goede zithoek te realiseren, ruimte voor een eettafel waar de familie gezellig kan aan schuiven. Koken kan in de hoekkeuken met diverse inbouwapparatuur, maar hier zou ook een keuken geplaatst kunnen worden met een eiland waardoor er een woonkeuken gerealiseerd kan worden. Prettig dat naast de keuken de bijkeuken is met de opstelplaats van de wasmachine, cv ketel en de nodige bergruimte.
Midden in het appartement bevindt zich de badkamer voorzien van een ligbad, inloopdouche met deur en wastafelmeubel. Het toilet met fontein is separaat, dus ideaal als er gasten zijn. 
Aan de achterzijde is een slaapkamer die nu in gebruik is als logeerkamer en kastenkamer, maar ook perfect als hobbykamer kan worden gebruikt. De hoofdslaapkamer met wastafel bevindt zich ook aan de achterzijde en heeft toegang tot het royale over de gehele breedte van de woning. Je zit hier prima met een gezelschap op het zonnige zuidwesten. Er is een leuke doorkijk over het Clausplein en je ziet nog net de toren van de Agatha kerk. 

Bijzonderheden:
- 3-kamer appartement in het centrum van Lisse
- royaal balkon over de gehele breedte van de woning
- ruime woonkamer en 2 goede slaapkamers
- mogelijkheden voor het realiseren van een woonkeuken
- een eigen parkeerplaats en privé berging
- actieve vve, servicekosten € 307,22 per maand
- aanvaarding januari 2026

Kenmerken