Beschrijving

Wil je wonen in een kindvriendelijke omgeving met de basisschool en sportverenigingen op loopafstand dan is de Dopheidestraat 32 in Lisserbroek misschien wel echt iets voor jou! 
Wonen in Lisserbroek is comfortabel met dorpse gezelligheid in de Haarlemmermeer. Kindvriendelijk is het zeker met op loopafstand speelplaatsjes, de basisschool, dorpshuis, sportclubs en De Olmenhorst. Het levendige centrum van Lisse met gevarieerd winkel en horeca-aanbod is met de fiets of lopend te bereiken. Ook het centrum van Nieuw-Vennep is vlakbij. Wil je met het openbaar vervoer weg, dan kun je opstappen in Lisserbroek. Op termijn komt er ook een R-net bushalte op loopafstand, zodat je snel op Schiphol bent of in Amsterdam. Voor EV-rijders is er een openbare laadpaal vlakbij de woning. Lisserbroek is vanaf de A44 met 5 autominuten zonder verkeerslichten te bereiken en je bent binnen een half uur in Amsterdam. Ook steden als Haarlem, Leiden, Den Haag of Schiphol zijn snel te bereiken. 

Indeling

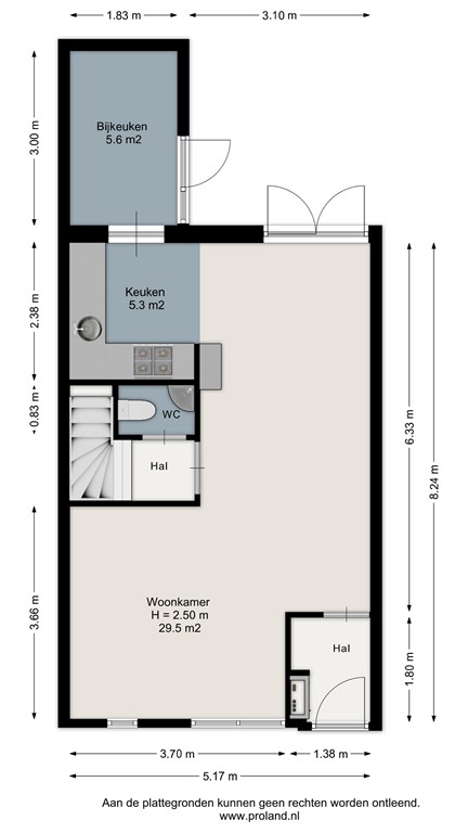
Begane grond 
De woning heeft een entree via de voortuin, die zeer verzorgd is en een mooie afscheiding is tussen de woning en de voorgelegen doodlopende straat. Je komt binnen in de compacte hal met garderobe en meterkast. Daarna stap je meteen binnen in de living met aan de voorzijde de zitkamer waar je gezellig met z’n allen samenkomt. Achter de tussenhal met toilet is de keuken geplaatst in een hoekopstelling en voorzien van inbouwapparatuur. Naast de keuken is de eethoek geplaatst zodat er tijdens het natafelen een oogje in het zeil gehouden kan worden door de openslaande deuren, terwijl de kinderen in de tuin spelen. In het verlengde van de keuken is de geïsoleerde bijkeuken met opstelplaats voor de wasmachine en droger. Hier is ook de kindergarderobe, ideaal als ze binnenkomen na het buitenspelen of op de fiets thuiskomen. Er is voldoende ruimte om hier een voorraadkast te realiseren of de keuken en bijkeuken aan te passen, waardoor er een grotere keuken gerealiseerd kan worden. 
De tuin is onderhoudsarm ingericht met een ruim terras, kunstgras en een kleine border, zodat er voor alle gezinsleden voldoende ruimte is om te genieten van de tuin. Achterin de tuin is de onderheide stenen berging uit 2024, welke is voorzien van elektra. Voor de berging is de tuin overkapt zodat je droog staat als je met de fiets thuis komt. 

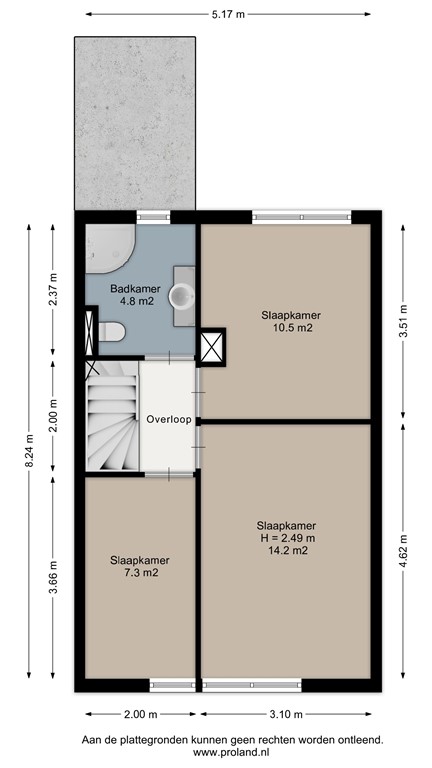
1e etage 
De overloop verbindt de 3 slaapkamers en badkamer. Met de achterzijde de badkamer voorzien van een toilet, douche en wastafelmeubel. Hiernaast is een goed formaat slaapkamer waar de kinderen de ruimte hebben om te spelen en lekker te slapen. Aan de voorzijde is de hoofdslaapkamer met een leuke doorkijk en daarnaast een slaapkamer, welke in gebruik is als babykamer. Er zijn woningen waarbij de beide slaapkamers aan de voorzijde zijn samengevoegd en kleinere kamer dan wordt gebruikt als walk-in garderobe. 
 


2e etage 
Via een vaste trap kom je op de voorzolder met de technische installaties en de opstelplaats voor de wasmachine en droger. De ruimte is nu in gebruik als waskamer met naast de wasmachine een klein keukenblok zodat hier ook de handwas gedaan kan worden. Er is naast de trap een inbouwkast gerealiseerd voor extra bergruimte en hier bevindt zich ook de heteluchtverwarming en de cv-ketel voor het warme water. De dakkapel is geplaatst in 2022 en zorgt ervoor dat zowel de voorzolder als de slaapkamer veel daglicht hebben. Dan is er nog een royale slaapkamer met dakraam en natuurlijk de dakkapel en veel bergruimte achter de knieschotten. Dit is nu een kinderkamer met veel speelruimte, maar voor menig studerend kind zou deze ruimte ook meer dan voldoende ruimte bieden om na het leren te relaxen. Door de grote van de zolder is het ook mogelijk om de indeling aan te passen en hier 2 kamers te realiseren.

Bijzonderheden: 
- kindvriendelijk gelegen met sportvelden en school om de hoek
- voortuin en achtertuin onderhoudsarm aangelegd
- mogelijkheden om uit te bouwen aan de achterzijde
- 4 slaapkamers, mogelijkheid 5
- brede dakkapel met HR++ beglazing uit 2022
- onderheide stenen berging uit 2024 
- volledig geïsoleerd met gunstig energielabel A 
- centrale ligging op loopafstand van alle voorzieningen 
- aanvaarding augustus 2026

Kenmerken