Beschrijving

Genieten dat kun je hier zeker aan het vaarwater met je boot aan de steiger of in de achtertuin, welke  22 meter diep is en een 27m² grote berging heeft. Hier kun je genieten van het buitenleven, maar als het weer niet toe laat zit je heerlijk in de woonkeuken of bij de houtkachel. Deze 2-onder-1 kapwoning beschikt over 4 woonlagen met op straatniveau de ruime living en in het souterrain een grote woonkeuken. Op de 1e etage de luxe badkamer, slaap-/werkkamer en de royale hoofdslaapkamer. De zolder is nu een grote slaapkamer, ideaal voor de thuiswonende student. Dit huis heeft alles wat een gezin nodig heeft en door de grote leefruimte met een gescheiden woonkeuken heeft de woning alle ruimte om samen met familie en vrienden te genieten. Een groot voordeel is dat het opstalrecht is afgekocht tot november 2050!   

Aan de Hillegommerdijk 26 kun je comfortabel wonen aan het water en toch ook een beetje dorps in de Haarlemmermeer. Met de boot vaar je naar De Kagerplassen en daar is het heerlijk vertoeven. Het levendige centrum van Lisse met gevarieerd winkel-/horeca aanbod is op fietsafstand. Ook het centrum van Nieuw-Vennep is makkelijk aan te rijden. In Lisserbroek is op loopafstand het dorpshuis, voetbal, tennis, basisschool en kinderopvang. Wil je met het openbaar vervoer weg, dan kun je opstappen in Lisserbroek of Lisse. In de toekomst komt er ook een R-net bushalte, zodat je snel bijvoorbeeld op Schiphol bent. Lisserbroek is vanaf de A44 met 5 autominuten te bereiken en je bent in 20 autominuten in Amsterdam. Ook steden als Haarlem, Leiden, Den Haag of Schiphol zijn snel te bereiken. 

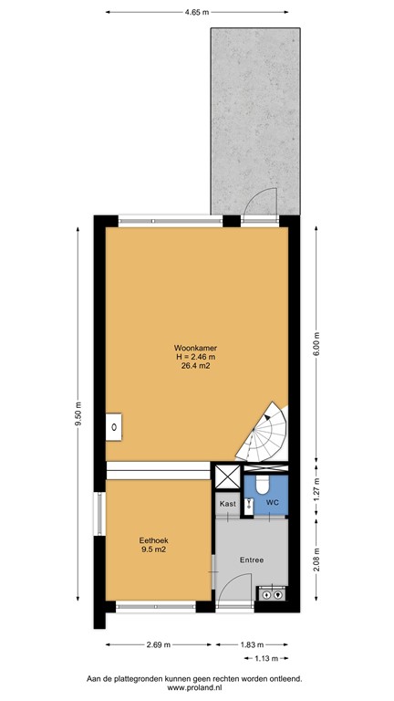
Begane grond 
Via de verzorgde voortuin toegang tot de entree. In de hal is de garderobe, meterkast, modern toilet en deur naar de kamer. Aan de voorzijde van de kamer is er een hoge tafel waar je zicht hebt over de Ringvaar en alle boten die voorbij komen. Hier kan ook voor kinderen een leuke speelhoek worden gerealiseerd. Twee treden hoger bevindt zich de lichte living, wat een heerlijke ruimte is met zicht op en deels over de achtertuin. Een knappend vuurtje in de haard brengt op een koude winterdag een veel warmte in de kamer. De leefruimte is afgewerkt met een houten vloer, glad gestuukt plafond met inbouwspots en op de muren een sfeervolle kleurencombinatie. Comfortabel is de vloerverwarming, welke op deze etage is aangebracht. 

Souterrain 
Beneden is de ruime woonkeuken met vloerverwarming, wat een sfeervolle ruimte is en voor menig hobbykok een droom is. De keuken is geplaatst in een hoekopstelling en is voorzien van een luxe fornuis met 3 ovens en een 5-pits gaskookplaat, daarboven is een geïntegreerde afzuigschouw. Tevens is er een aparte combimagnetron. Een vaatwasser en grote Amerikaanse koelkast met vriezer ontbreken niet en de apparatuur is geheel in lijn met de keuken in landelijke stijl uitgevoerd. Aansluitend is er een bijkeuken met opstelplaats voor de wasmachine en droger en garderobe. Vanuit zowel de bijkeuken en de keuken is de achtertuin bereikbaar. Als het zonnetje schijnt kan de schuifpui worden geopend en is het beschutte terras een heerlijke plek voor de lunch. In de diepe tuin zijn meerdere terrassen aangebracht zodat je kunt genieten van de zon of juist van de schaduw. Achter in de tuin is de ruime berging, waar naast tuinspullen ook een motor in geplaatst kan worden. 

1e etage 
Op de 1e etage bevinden zich 2 slaapkamers en de moderne badkamer. Aan de voorzijde is de ruime badkamer met grote inloopdouche voorzien van vloerverwarming, rainshower met sunshower en brede deur, een deels afgeschermd toilet, wastafelmeubel met waskom en 2 hangkasten tegenover de douche. Het geheel is hoogwaardig afgewerkt met zwart/grijstinten en houten accenten.
De naastgelegen slaapkamer aan de voorzijde heeft zicht op de Ringvaart en is nu in gebruik als werkkamer en kastenkamer. Aan de achterzijde bevindt zich nu de royale hoofdslaapkamer over de gehele breedte van de woning. Vanuit deze kamer zicht over de tuin en de lager gelegen woningen. 

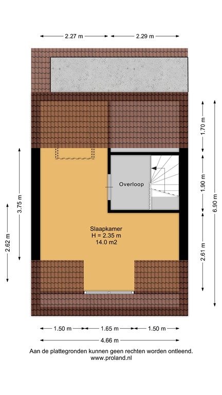
2e etage 
De zolder heeft een kleine voorzolder met toegang tot de bergvliering. De zolder is nu in gebruik als een grote slaapkamer en hobbyruimte met dakkapel en dakraam. Er is alle ruimte voor een tweepersoonsbed, kledingkast en groot bureau waar ook een goede gameplek gerealiseerd kan worden. Dit is voor een thuiswonend studerend kind een heerlijke ruimte.

Bijzonderheden: 
- opstalrecht afgekocht tot november 2050
- 2-onder-1 kap woning aan vaarwater met steiger 
- royale woonkeuken met vloerverwarming en bijkeuken 
- woonkamer met vloerverwarming en houtkachel
- luxe moderne badkamer en toilet
- 22 meter diepe achtertuin met meerdere terrassen
- grote berging met elektra van 27m²
- waterontharder aanwezig en goten vervangen
- deel kunststof kozijnen met HR++ en tripple beglazing  
- 8 zonnepanelen en gunstig energielabel B
- oplevering maart 2026

Kenmerken