Beschrijving

In het bezit van 2 rechterhanden of ideeën te over voor het (ver)nieuwbouwen van een woning, dan is de woning aan de Boekhorstlaan 157 misschien wel precies wat je zoekt.
Deze te moderniseren woning met karakter staat samen met Boekhorstlaan 159 te koop waardoor dit kansen biedt voor het realiseren van een kangoeroe constructie of een totale (ver)nieuwbouwing van beide objecten samen. Het woonhuis heeft aan de voorzijde echt een eigen karakter met de mansarde kap. Beneden is de woonkamer met zicht op de straat aan de voorzijde en de achtertuin. De keuken is via de kamer en hal te bereiken. In de keuken is er zicht op de oprit met de veranda waar je lekker beschut kunt genieten en waar de kleinkinderen geregeld komen spelen. In het verlengde van de keuken is de badkamer, bereikbaar via een tussenhal die vaak gebruikt wordt als entree vanuit de tuin. De achtertuin is volledig omheind en via de berging is er een achterom. Boven zijn er 4 slaapkamers waarvan er 1 toegang geeft tot het dakterras. 

Het naastgelegen deel met huisnummer 159 bestaat uit een gelijkvloerse woning met berging en grote garage. Het is mogelijk om beide woningen tegelijk aan te kopen. Zie voor meer informatie Boekhorstlaan 159.
 
Boekhorstlaan 157 is centraal gelegen in het oude Voorhout, in een zijstraat van de winkelstraat en veel andere voorzieningen. De school, kinderopvang, huisartsenpraktijk, bushalte, horeca en de supermarkt zijn allemaal lopend te bereiken en het treinstation is op loopafstand. Vlakbij zijn de duinen met mooie wandel-/fietsroutes. Uitvalswegen richting Leiden, Den Haag, Schiphol en Amsterdam zijn eenvoudig aan te rijden en midden in het dorp beleef je het leven in de Randstad toch net wat gezelliger.

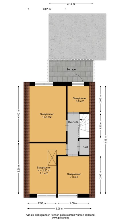
Indeling 

Begane grond 
Je komt binnen bij de voordeur via de voortuin en loopt de hal in met de garderobe, meterkast, trap naar boven en toegang tot de woonkamer en keuken. De woonkamer heeft de zithoek aan de voorzijde met zicht in de straat en de eettafel is nu geplaatst aan de achterzijde met zicht op de achtertuin en fijn is dat er in de kamer zijramen zitten zodat de hele ruimte prettig en licht aanvoelt. Het is mogelijk om de woning aan de achterzijde uit te bouwen en gelijk te trekken, waardoor een indeling met ruime woonkeuken mogelijk wordt. Nu is de keuken geplaatst in het verlengde van de hal met leuke doorkijk naar de veranda en zicht op de spelende kinderen. De keuken is deels voorzien van inbouwapparatuur en beschikt over een groot fornuis met 5 pitten en brede oven.
Naast de keuken is de tussenhal die vaak gebruikt wordt binnenkomst via de achterom en als extra afscherming van de badkamer met douche en wastafel. Het is mogelijk om hier een waskamer te realiseren met de aansluiting van de wasmachine en droger als de badkamer boven wordt gerealiseerd.

Vanuit de tussenhal is de achtertuin bereikbaar. De volledig omheinde tuin is een oase van rust midden in het dorp met een goed terras en toegang tot de ruime schuur en toegang tot de tuin van Boekhorstlaan 159.

1e etage 
Vanaf de overloop zijn alle slaapkamers op de 1e etage bereikbaar. De hoofdslaapkamer is gelegen aan de achterzijde met zicht op de achtertuin en daarnaast de werkkamer met dakterras. 
Slaapkamer 3 en 4 bevinden zich aan de voorzijde, de kleine kamer kan verbouwd worden tot een badkamer zodat er beneden meer leefruimte ontstaat en er misschien zelfs een ligbad geplaatst kan worden of een ruime inloopdouche, dubbele wastafel en 2e toilet. Via een vlizotrap is de bergzolder bereikbaar.

Perceel  
De achtertuin is omheind en daardoor zeer privé, er is nu de mogelijkheid voor de bewoner van Boekhorstlaan 159 om via de achtertuin naar eigen terrein te gaan. Aan de voorzijde is de oprit waar de bewoner van nummer 159 ook over mag rijden om toegang te krijgen tot de woning en de schuur. Om meer te genieten van het buiten zijn is naast de oprit een veranda gebouwd en een afgeschermd deel gerealiseerd waar kinderen van beide woningen kunnen spelen en je kunt genieten van het buiten zijn.
 
Bijzonderheden: 
- woning geheel naar eigen smaak en wensen te realiseren
- kangoeroeconstructie mogelijk i.c.m. huisnummer 159
- parkeren op eigen terrein 
- centraal gelegen in het centrum
- heel veel privacy in de achtertuin  
- school, sport, horeca, bos en OV op loopafstand
- nutsvoorzieningen naar 159 via tussenmeter
- oplevering in overleg

Kenmerken