Beschrijving
Alle voorzieningen nabij, nieuwe keuken en dan ook nog een energielabel A+? Het kan aan de Regulierstraat 37RD waar je woont op fietsafstand van het centrum om de hoek van de gezellige winkelstraat Cronjé. Deze verzorgde bovenwoning met energielabel A+ is zeer energiezuinig door de nieuwe cv ketel en zonnepanelen. Ook is er in 2025 een nieuwe keuken met inbouwapparatuur geplaatst, badkamer grotendeels vernieuwd, het platte dak is geïsoleerd en vervangen, maar ook alle wanden en plafonds zijn strak gestuukt. Kortom je kunt meteen genieten in deze bovenwoning met balkon en 3 slaapkamers op een super centrale locatie in de bruisende stad Haarlem.
Echt alle voordelen van de stad zijn hier; het station op loopafstand, de gezellige winkelstraat Cronjé achter je voor de dagelijkse boodschappen, maar ook vele gemakswinkels, de donderdagmarkt en winkelcentrum Spaarneboog zijn ook op loopafstand en de bushalte op steenworp afstand. Voor kinderen zijn er meerdere scholen en kinderopvang nabij. Wil je naar de sfeervolle binnenstad? Geen probleem want je bent er snel, waar je kunt genieten van de uitstekende horeca en het uitgebreide winkelaanbod. Recreëren kan in één van de nabij gelegen parken of een wandeling door duinen. Is het een mooie zomerdag dan kun je ook naar het strand van Bloemendaal fietsen. Parkeren kan via een bewonersvergunning. De uitvalswegen zijn snel aan te rijden en al deze voordelen zorgen ervoor dat dit een super locatie is!
Indeling
Begane grond
Privé entree tot de woning met beneden de meterkast en de trap naar de 1e etage.
1e etage
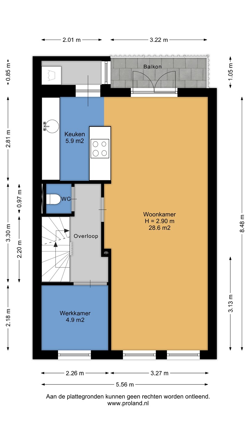
Op de overloop bevindt zich de garderobe, vrijdragend toilet en toegang tot de slaap-/werkkamer en de woonkamer aan de voorzijde. Nu kun je in de woonkamer met hoog plafond aan de voorzijde genieten van het gezellige straatbeeld en is aan de andere kant van de kamer de eettafel geplaatst direct bij de nieuwe open keuken. De keuken is nieuw en heeft een rechte opstelling met daarvoor een schiereiland. Het geheel is voorzien van inbouwapparatuur waaronder een inductiekookplaat met ingebouwde afzuigunit, vaatwasser, magnetron, heteluchtoven, koel-/vrieskast en een Quooker. Alleen nog boodschappen doen en de thuiskok kan hier de lekkerste maaltijden bereiden. Naast de keuken is de bijkeuken met opstelplaats voor de wasmachine. Aan de achterzijde is het balkon dat met dubbele openslaande deuren bereikbaar is en op een zonnige dag een verlening van je leefruimte.
2e etage
Boven zijn er 2 royale slaapkamers en een ruime badkamer met aan de achterzijde over nagenoeg de gehele breedte een dakkapel. De nette badkamer is voorzien van een ligbad, vrijdragend toilet, douchecabine en wastafelmeubel. Er is door de dakkapel een raampartij zodat er daglicht in de badkamer komt en er natuurlijk geventileerd kan worden. Naast de badkamer is een slaapkamer aan de achterzijde en aan de voorzijde is de zeer ruime hoofdslaapkamer met dakkapel. In de hoofdslaapkamer is een kast met de nieuwe cv-ketel.
Bijzonderheden
• wonen op een super locatie nabij alle voorzieningen van Haarlem
• energielabel A+
• nieuwe keuken met inbouwapparatuur
• nieuwe cv-ketel, 5 zonnepanelen en dakbedekking
• glad gestuukte wanden en hoge gestuukte plafonds
• de gezellige winkelstraat De Cronjé om de hoek
• Station Haarlem en de bruisende binnenstad op loopafstand
• VVE bijdrage € 15,= per maand en fundering op “staal”
• notariskeuze verkoper Notariskantoor Hillegom
• aanvaarding kan per direct