Beschrijving
Wonen in het centrum van Lisse met vele voorzieningen letterlijk op loopafstand, dat is ideaal! Het verzorgde hoekappartement is gelegen op de 1e en 2e etage van het appartementencomplex met een leuke doorkijk in de Kanaalstraat en de Heereweg. De maisonnette beschikt over een ruime living met moderne woonkeuken en een sfeervolle slaapkamer met badkamer en-suite en toegang tot het dakterras met openslaande deuren. Je ervaart hier echt het dorpse leven met aan de buitenzijde de mooie gevel en binnen de allure van een stadsloft.
Op het dakterras zit je echt privé en dat midden in het centrum. Tijdens het koken ontdekken dat je iets vergeten bent, de winkels zijn binnen handbereik. Een dag geen zin om te koken, lekker genieten kan ook bij de gezellige restaurants die Lisse rijk is, of daar gezellig met vrienden op het terras een drankje drinken. Binnen enkele minuten zijn de uitvalswegen richting Amsterdam, Schiphol, Den Haag, Leiden en de Noordzee kust te bereiken. Maar ook sport- en recreatiefaciliteiten zoals de Keukenhof, golfbaan Ter Specke zijn op loop- en fietsafstand.
Kortom een heerlijke plek om straks jouw thuis te mogen noemen, waar je zelf kan bepalen wanneer je tijd voor jezelf neemt of het vertier in de directe omgeving opzoekt.
Begane grond
Samen met de directe buren is er gedeelde entree met bellentableau en intercom. Via de trap kom je op de 1e etage met toegang tot de twee appartementen. Er is een gezamenlijke berging voor de 5 appartementen.
1e etage
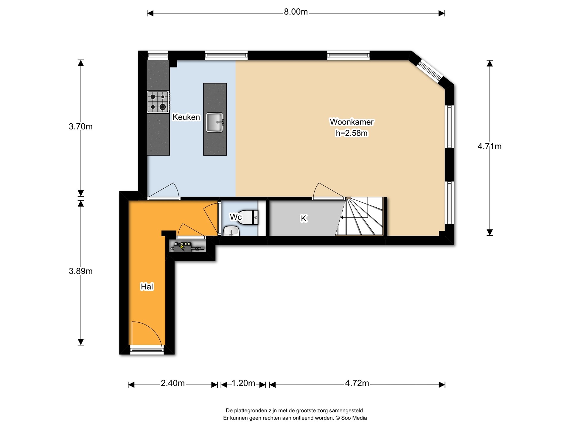
Je komt de woning binnen via de hal met garderobe. Hier is ook de meterkast en een modern vrijdragend toilet met fontein. In de living is de plek waar je samen leeft en geniet, met een moderne woonkeuken bestaande uit een recht deel tegen de muur en spoeleiland. In het rechte deel zit de inductiekookplaat, afzuigschouw, koelkast, vriezer en combimagnetron. Het spoeleiland heeft naast bergruimte en een goedwerkblad ook de vaatwasser. Kortom een plek waar je heerlijk samen kookt met in het verlengde de eettafel. In het zitgedeelte staat nu een hoekbank waar je na een lange werkdag samen je rust pakt. Praktische bergruimte is er in de grote trapkast. Er zijn veel ramen in de lichte living en dat maakt het een hele fijne leefruimte. De leuke doorkijk in de Kanaalstraat en de Heereweg zorgen ervoor dat het uitzicht gedurende het jaar steeds veranderd met ieder seizoen en tijdens het bloemencorso sta je in je eigen skybox.
2e etage
Er is een vaste trap naar boven met ruime slaapkamer. In de slaapkamer brengen de dakspanten de sfeer van toen in de moderne setting. Kastruimte is gerealiseerd door inbouwkastelementen in de muur die samen een modern blokkenpatroon vormen. Ook is er een technische ruimte met de opstelplaats van de wasmachine, droger en de Nefit cv-combiketel uit november 2023. Aan de voorzijde is de en-suite badkamer die middels een schuifdeur wordt afgesloten. In de badkamer is een wastafelmeubel met grote wastafel en brede spiegel, douche met rainshower en een vrijdragend toilet. Het stukje extra luxe is het dakterras waar je veel privacy hebt en gehele dag kunt zitten in de zon. Een prima plekje om samen te vertoeven met een hapje en een drankje.
Bijzonderheden:
- comfortabel hoekappartement met modern interieur en authentieke uitstraling
- zonnig dakterras op het noordwesten
- moderne keuken met spoeleiland
- midden in het centrum met vele voorzieningen op steenworp afstand
- actieve vve, servicekosten €63,= per maand
- aanvaarding in overleg