Beschrijving
Een gemoderniseerd appartement echt een kans voor starters! In het kleinschalige appartementencomplex is dit instapklare 2-kamer hoekappartement gelegen op de 1e etage. Het appartement heeft een badkamer met inloopdouche voorzien van een rainshower, keuken met apparatuur, frans balkon, een visgraat laminaatvloer en gestuukte wanden in rustige natuurlijke kleuren.
Het complex bevindt zich aan de rand van Lisse dichtbij de uitvalswegen en bushalte. Het gezellige centrum van Lisse, bollenvelden en het strand zijn op fietsafstand en bij thuiskomst kan de fiets in de inpandige gemeenschappelijke fietsenberging worden gestald. Er is een 2e fietsenstalling buiten evenals de parkeerplaatsen behorend bij het complex. Er is een algemene wasruimte op de 1e etage, voorzien van diverse wasmachines en drogers. De centrale ligging aan de rand van Lisse, met alle voorzieningen op fietsafstand. Genieten van de horeca in Lisse of ontspannen aan de kust is hier binnen handbereik. De bushalte is op loopafstand en de uitvalswegen richting Amsterdam, Schiphol, Leiden en Den Haag zijn snel aan te rijden.
1e etage
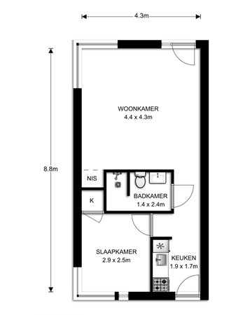
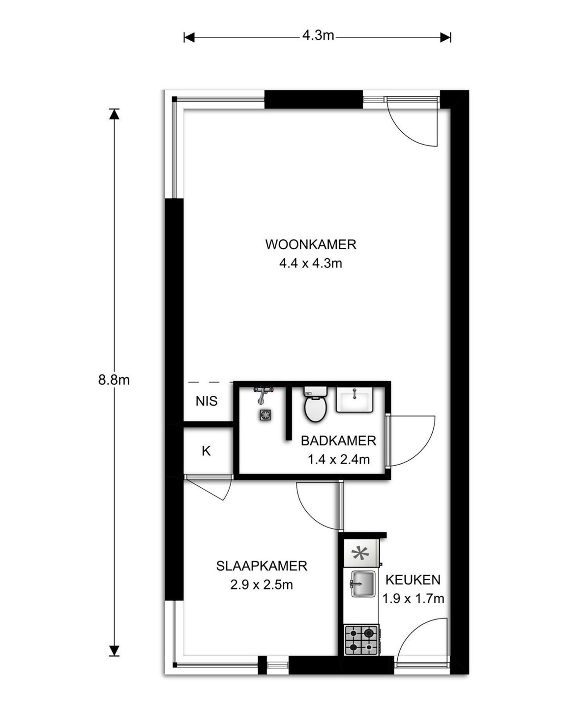
Het hoekappartement bevindt zich aan het einde van de galerij en je betreedt de woning via een eigen voordeur. Je komt direct in de keuken geplaatst in een rechte opstelling voorzien van koelkast met vriesvak, vaatwasser, kookplaat en afzuigkap. Achter de keuken is de slaapkamer met inbouwkast. In de hoek zijn 2 ramen waardoor het een prettige lichte ruimte is. Er is voldoende ruimte voor een bed en linnenkast. In het midden van het appartement is de badkamer met een wastafelmeubel, toilet en inloopdouche met rainshower. De woonkamer is een mooie lichte leefruimte met aan de achterzijde een frans balkon en extra raam in de zijgevel. Door het moderne kleurgebruik dat is afgewisseld met houten elementen voelt de kamer als een fijne plek waar je echt thuis komt.
Alle wanden en het plafond zijn gestuukt en een deel van de wanden heeft een natuurtint. De vloer is afgewerkt met een nieuwe visgraat laminaatvloer in licht eiken tint. Het appartement heeft een beschutte ligging en biedt privacy. Een leuk appartement om te starten, kom je snel kijken?
Bijzonderheden:
- instapklaar hoekappartement
- gezamenlijke wasruimte en fietsenberging
- servicekosten € 295,= per maand, incl. verwarming/water en wasruimte
- parkeerplaatsen op eigen terrein van de VVE
- alle voorzieningen op fietsafstand
- aanvaarding in overleg