Beschrijving
Zoek je een ruime eengezinswoning met 15 meter achtertuin en vele mogelijkheden? Dan is de Dopheidestraat 45 in Lisserbroek het huis wat jij zoekt!
Wonen in Lisserbroek is comfortabel met dorpse gezelligheid in de Haarlemmermeer. Kindvriendelijk is het zeker met op loopafstand speelplaatsjes, de basisschool, dorpshuis, sportclubs en De Olmenhorst. Het levendige centrum van Lisse met gevarieerd winkel en horeca-aanbod is met de fiets of lopend te bereiken. Ook het centrum van Nieuw-Vennep is vlakbij. Wil je met het openbaar vervoer weg, dan kun je opstappen in Lisserbroek. Op termijn komt er ook een R-net bushalte op loopafstand, zodat je snel op Schiphol bent of in Amsterdam. Voor EV-rijders is er een openbare laadpaal vlakbij de woning. Lisserbroek is vanaf de A44 met 5 autominuten zonder verkeerslichten te bereiken en je bent in 45 autominuten in Amsterdam. Ook steden als Haarlem, Leiden, Den Haag of Schiphol zijn snel te bereiken.
Indeling
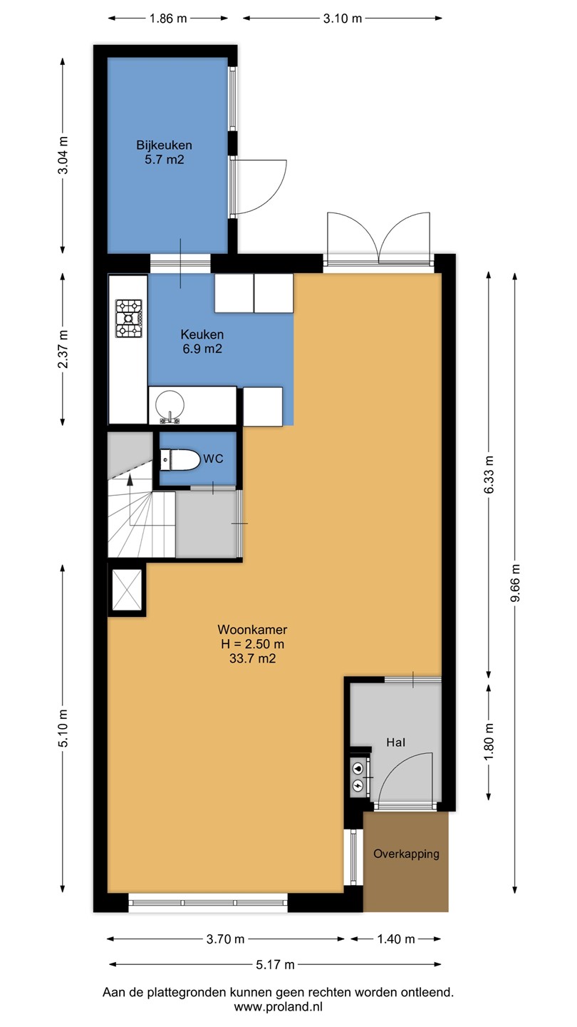
Begane grond
Je betreedt de woning via de voortuin en komt in de compacte hal met gaderobe, meterkast en deur naar leefruimte. Aan de voorzijde is de uitgebouwde woonkamer met een sfeervolle haard in de hoek, waar je op een winterse dag de warmte en gezelligheid op zoekt. Aan de achterzijde is de keuken geplaatst en die is van de woonkamer afgeschermd door de tussenhal waar zich de trap naar boven en het toilet bevinden. De keuken is geplaatst in een hoekopstelling met een stenen blad en apparatenkast tussen de openslaande deuren en loopdeur naar de bijkeuken. Om heerlijke gerechten neer te zetten zijn er de volgende inbouwapparaten geplaatst; 5-pits gaskookplaat met afzuigschouw, vaatwasser, heteluchtoven, combimagnetron en koelkast. In het verlengde van de keuken is de bijkeuken voorzien van grote kasten en een loopdeur naar de tuin.
De ruim 15 meter diepe achtertuin op het westen is ook bereikbaar via de openslaande deuren. Het is mogelijk om de achterzijde uit te bouwen, zoals de buren hebben gedaan om een woonkeuken te realiseren. Nu is er een beschut terras grenzend aan de woning en bijkeuken en voor de warme dagen is er een zonnescherm. Er staan meerdere platanen in de tuin die samen zorgen voor een natuurlijke parasol in de zomer en achterin de tuin staat een grote houten berging. Via de deur in de schutting is de tuin achterom bereikbaar. Op de plek van de huidige berging zou een mooie veranda met aangrenzende berging geplaatst kunnen worden om de ook tijdens de minder warme en zonnige dagen te genieten van de tuin.
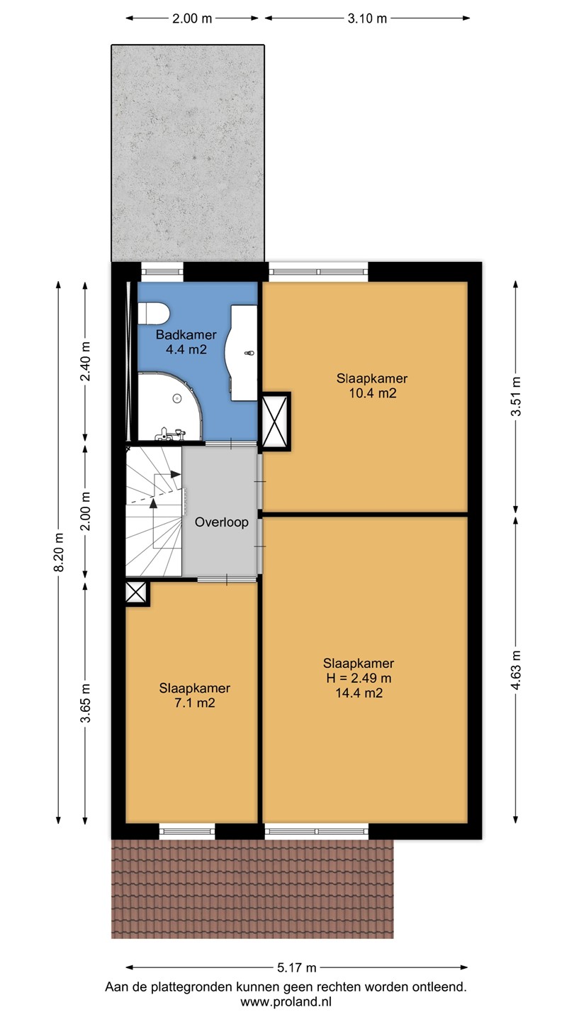
1e etage
De overloop verbindt de 3 slaapkamers en badkamers. Aan de achterzijde is de badkamer met een toilet, douche en wastafelmeubel. Daarnaast is een goed formaat slaapkamer die nu in gebruik is als logeerkamer. Aan de voorzijde is de hoofdslaapkamer en daarnaast de kleinere slaapkamer die nu in gebruik is als werkkamer. Alle slaapkamers zijn voorzien van elektrische rolluiken.
2e etage
Via een vaste trap kom je op de voorzolder met de technische installaties en de opstelplaats voor de wasmachine en droger. Er is een zeer grote slaap-/hobbykamer met een groot dakraam zodat de ruimte voldoende daglicht heeft. Door de grootte van de zolder kunnen hier ook 2 kamers met vliering worden gerealiseerd met wellicht twee dakkapellen. Misschien wil je wel deze etage voor jezelf met een 2e badkamer en walk-in garderobe. Kortom dit is echt een huis waar je als gezin in kunt groeien.
Bijzonderheden:
- vele uitbreidingsmogelijkheden
- eengezinswoning met uitbouw aan de voorzijde
- keuken met aansluitend bijkeuken
- ruim 15 meter diepe achtertuin op het zonnige noordwesten
- 4 slaapkamers (mogelijkheid 5)
- kindvriendelijk gelegen met sportvelden en school om de hoek
- centrale ligging op loopafstand van alle voorzieningen
- aanvaarding in overleg